12M 13M 14M TOP LIFTING ELECTRIC REACH TRUCK 2ton 2.5ton Capacity Reach Truck Forklift RLQS
Experience superior performance and efficiency with the TOP LIFTING ELECTRIC REACH TRUCK. This powerful and versatile forklift features a 2ton or 2.5ton capacity, ideal for lifting and transporting heavy loads with ease. Rely on our expertise in reach truck technology to increase productivity and enhance your warehouse operations.
Product descriptions from the supplier
Product details
Product Paramenters
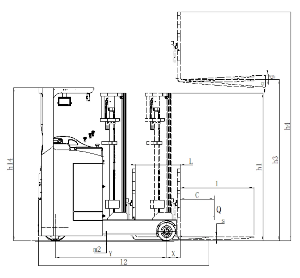
| Characteristic | 1.1 | Model | RLQS15-45S | RLQS20-45S | RLQS25-80S | RLQS30-45S | RLQS20H-120S | |
| 1.2 | Power Type | Electric | Electric | Electric | Electric | Electric | ||
| 1.3 | Operation Mode | Seated Type | Seated Type | Seated Type | Seated Type | Seated Type | ||
| 1.4 | Load Capacity | Q(kg) | 1500 | 2000 | 2500 | 3000 | 2000 | |
| 1.5 | Load Center | C(mm) | 500 | 500 | 500 | 500 | 500 | |
| 1.6 | Front Overhang | X(mm) | 183 | 183 | 183 | 183 | 183 | |
| 1.7 | Wheelbase | Y(mm) | 1470 | 1620 | 1620 | 1650 | 1650 | |
| 1.8 | Reach Distance | L(mm) | 505 | 655 | 515 | 610 | 610 | |
| Weight | 2.1 | Service Weight(With Battery) | kg | 3000 | 3050 | 4100 | 5860 | 6200 | 
| Wheels, Chassis | 3.1 | Wheel Type | PU | PU | PU | PU | PU | |
| 3.2 | Front Wheel | ∅×w(mm) | 267*114 | 267*114 | 267*114 | 280*135 | 280*135 | |
| 3.3 | Driving Wheel | ∅×w(mm) | 382*142 | 382*142 | 382*142 | 382*142 | 382*142 | |
| 3.4 | Front Wheelbase | b10(mm) | 1180 | 1180 | 1180 | 1329 | 1329 | |
| Dimensions | 4.1 | Mast Height,Lowered | h1(mm) | 2105 | 2105 | 3550 | 2485 | 5136 | 
| 4.2 | Free Lift | h2(mm) | 1500 | 1500 | 2660 | 1500 | 4020 | |
| 4.3 | Lifting Height | h3(mm) | 4500 | 4500 | 8000 | 4500 | 12000 | |
| 4.4 | Height,mast entended | h4(mm) | 5500 | 5500 | 8965 | 6945 | 12580 | |
| 4.5 | Height of Overhead Guards | h14(mm) | 2180 | 2180 | 2180 | 2180 | 2180 | |
| 4.6 | Fork Clearance when Mast Lowered | h13(mm) | 35 | 40 | 45 | 45 | 40 | |
| 4.7 | Mast/Fork Title Angle | α/β(°) | 3/5 | 3/5 | 3/5 | 3/5 | 3/5 | |
| 4.8 | Overall Length(With Fork) | l2(mm) | 2477 | 2477 | 2477 | 2515 | 2515 | |
| 4.9 | Overall Width | b1(mm) | 1270 | 1270 | 1270 | 1270/1460 | 1270/1460 | |
| 4.10 | Fork Size | s/e/l(mm) | 35/100/1070 | 40/122/1070 | 45/125/1070 | 45/125/1070 | 40/122/1070 | |
| 4.11 | Fork Spread | b5(mm) | 210-705 | 244-705 | 244-705 | 270-840 | 260-840 | |
| 4.12 | Min. Ground Clearance | m2(mm) | 70 | 70 | 70 | 70 | 70 | |
| 4.13 | Aisle Width for Pallet 1000*1200 crossways | Ast(mm) | 2964 | 3007 | 3007 | 3110 | 3010 | |
| 4.14 | Min. Turning Radius | Wa(mm) | 1800 | 1900 | 1900 | 1922 | 1922 | |
| Performance | 5.1 | Max. Travel Speed (Unladen/Laden) | km/h | 7.8/6.8 | 7.8/6.8 | 7.8/6.8 | 7.8/6.8 | 7.8/6.8 | 
| 5.2 | Lifting Speed (Unladen/Laden) | m/s | 0.240/0.120 | 0.240/0.120 | 0.240/0.120 | 0.240/0.175 | 0.240/0.175 | |
| 5.3 | Lowering Speed (Unladen/Laden) | m/s | 0.260/0.315 | 0.270/0.305 | 0.270/0.305 | 0.210/0.305 | 0.270/0.305 | |
| 5.4 | Max. gradeability (Unladen/Laden) | % | ≤10 | ≤10 | ≤10 | ≤10 | ≤10 | |
| 5.5 | Service Brake | Electromagnetic | Electromagnetic | Electromagnetic | Electromagnetic | Electromagnetic | ||
| Motor, Charger | 6.1 | Drive Motor | kw | 6.5 | 6.5 | 6.5 | 8 | 6.5 | 
| 6.2 | Lift Motor | kw | 6.3 | 6.3 | 6.3 | 12 | 12 | |
| 6.3 | Battery Type | Lead Acid | Lead Acid | Lead Acid | Lead Acid | Lead Acid | ||
| 6.4 | Battery voltage/nominal capacity | V/Ah | 48V300Ah | 48V400Ah | 48V400Ah | 48V400Ah | 48V400Ah | |
| 6.5 | Charger | V/A | 48V/40A | 48V/50A | 48V/50A | 48V/50A | 48V/50A | |
| Other | 7.1 | Type of drive control | AC | AC | AC | AC | AC | |
| 7.2 | Sound level at the driver's ear acc. to EN12053 | dB(A) | 75 | 75 | 75 | 75 | 75 | |
| The data is for reference only, and the details shall be subject to the actual vehicle. | ||||||||
product structure diagram


Features
Tight structure, flexible operation. Central fixed driving unit, lowered center of gravity and good stability. suitable for big load and high lift Mast reaches out, small turning radius, suit for different occasions with limited space, Full AC drive system, strong climbing ability, maintenance free, regenerative braking, good stability and high efficiency. No carbon brushes. Branded electric control system with multiple automatic protection systems to provide a higher level of functional safety. HD display instrument shows real time status and provide fault display for troubleshooting and maintenance. EPS reduce 20% energy consumption, operates accurate, reduce driver fatigue and increase productivity. Fork tilting function to prevent load from tipping and improve load stability. Side way pull battery with battery roller and trolley suit for multi shift occasions and more convenient to.